Original Set Design

Late Company

Spring 2020

My original set design and concept work for the play Late Company written by Jordan Tannahill.

FINAL MODEL

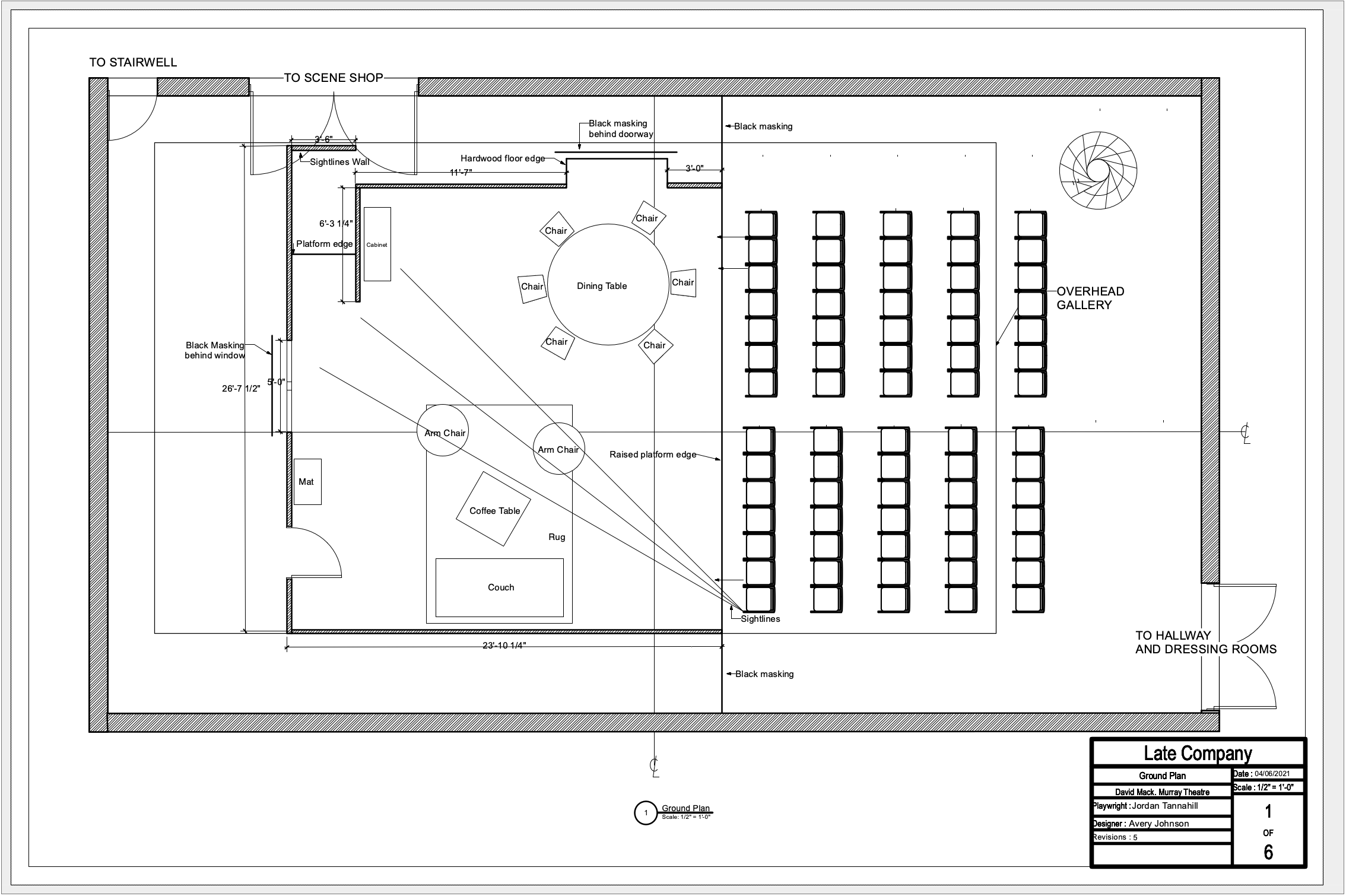
PROCESS PHOTOS & DRAFTING

Program Used: VectorWorks

Model Details

Materials: Foamcore & Cardstock

  • Patterns and textures printed on cardstock

  • Assembled with white glue and pins